architecture

        home    contact us  l  interiors & color  
 

Commercial

 Tenant  Improvements (view projects)

 

Commercial

       New Construction

       Tenant Improvements

Residential

       Custom Homes

       Remodels

Community

Concepts

Projects

1

2

3

4

     
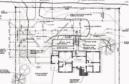
  Tenant improvements can take on many forms: Handicap accessibility, parking, interior and exterior renovation.  LaMont Design has helped many local businesses achieve their goals.

Copyright 2008 LaMont Design, Inc.